聯系我們

開來濕克威防水科技股份有限公司
地址:上海市閔行區浦江鎮聯川路258號8號樓
全國免費咨詢電話
開來:400-133-9198
SECOV(濕克威):400-133-9198
電子郵箱:2163631060@qq.com
地址:上海市閔行區浦江鎮聯川路258號8號樓
全國免費咨詢電話
開來:400-133-9198
SECOV(濕克威):400-133-9198
電子郵箱:2163631060@qq.com

防水知識
室內防水施工知識大全
防水工程是施工工序中的重要一環,對施工質量非常重要,所以防水材料、工藝做法的選擇對施工的重要性顯而易見。
一、室內防水主要施工工藝及重點
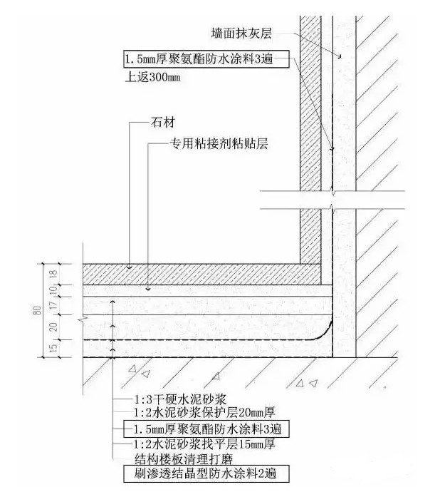
1. 施工工藝流程:基層清理、修補→濕潤基層→涂刷滲透結晶型涂料→找平層(保護層)→涂刷聚氨酯防水涂料→蓄水試驗→保護層
2. 基層處理時,對于陰陽角,須用水泥砂漿抹成圓角。
3. 防水涂料的涂刷厚度必須達到設計厚度,必要時,在施工檢查時進行取樣檢查。
4. 蓄水試驗要求蓄水高度最薄處不小于20mm,蓄水時間不少于24小時。
5. 地漏、排水管道部位,防水涂料需要涂刷進入管道內,深度80mm。
6. 在衛生間入口處,需要將防水范圍擴展至房間內300mm左右,以防該部位返潮、滲漏。
7. 在衛生間等有防水要求的房間,禁止在地面敷設管線,防止水通過管線滲漏,如必須由地面敷設,最好敷設在防水層上部。
二、選對防水材料,效果事半功倍, 室內防水,涂料要比卷材好
目前市面常見住宅室內防水工程常用的防水涂料主要有聚合物水泥基防水涂料(俗稱JS涂料)、聚氨酯防水涂料、丙烯酸防水涂料、聚合物防水砂漿。另外除了防水效果外,防水設計、施工性、環保性、成本工期等也是重要考慮因素。
1、聚合物水泥基防水涂料:簡稱JS防水涂料,是一種雙組分防水材料,它是由有機聚合物乳液(如丙烯酸酯乳液及各種助劑)和無機粉料(如水泥、石英粉等)組成的雙包裝防水涂料。
根據物理性能主要分為I型與II型,II型適用于長期浸水環境,室內防水建議選用II型。其防水性能剛柔相濟,既有水泥類膠凝材料強度高,又兼有聚合物涂膜防水效果好,干燥時間短,節省工期;價格20kg大約在160-180元/桶比較適中,性價比較高。
2、聚氨酯防水涂料:俗稱“液體橡膠”,是皮膚式防水的典范。其拉伸強度大,延伸率高,使用壽命長,是目前綜合性能最好、防水效果最佳的防水材料。其材料按照成分不同分為單組份與雙組份,但某些不環保雙組份產品中使用甲苯二異氰酸脂、MOCA(俗稱摩卡)固化劑等成份具有一定毒性,對環境有污染。
所以為了健康,建議室內防水工程宜選用環保單組份涂料或者環保水固化雙組份涂料。單組份價格20kg大約在300元/桶左右,雙組份價格20kg大約在240元/桶左右,成本較高。
3、丙烯酸防水涂料:是一種以丙烯酸共聚物乳液為主要成份,加入適量填料、助劑、及顏料等配制而成,屬于合成樹脂類單組份水乳型防水涂料。防水層涂刷便利,形成連續彈性膜,對復雜的節點部位施工尤為方便。
但因其主要原料僅為高聚物乳液,故要達到相同厚度,單位面積涂料使用量大,故單位面積成本較高。其價格20kg大約在260元/桶左右。
4、聚合物防水砂漿:是以水泥砂漿、填料為主要組成原料,通過摻加聚合物、外加劑及其它摻合料拌制的防水材料。此種材料可以直接在混凝土表面施工并粘結牢固,不受基層含水率的影響,干燥快,凝結時間短,干燥后即可直接粘貼瓷磚。
但是此種材料屬于剛性防水,對管道根部等復雜節點不宜處理,尤其對于設有同層排水衛生間及設有地暖的廚衛,在長時間使用過程中因節點復雜或溫度變化可能產生裂縫,造成滲漏風險。考慮到防水需要剛柔兼并,不建議室內防水層單獨使用防水砂漿,可作為防潮層使用。
四、衛生間防水做法
1. 施工工藝流程:基層清理、修補→濕潤基層→涂刷滲透結晶型涂料→找平層(保護層)→涂刷聚氨酯防水涂料→蓄水試驗→保護層
2. 基層處理時,對于陰陽角,須用水泥砂漿抹成圓角。
3. 防水涂料的涂刷厚度必須達到設計厚度,必要時,在施工檢查時進行取樣檢查。
4. 蓄水試驗要求蓄水高度最薄處不小于20mm,蓄水時間不少于24小時。
5. 地漏、排水管道部位,防水涂料需要涂刷進入管道內,深度80mm。
6. 在衛生間入口處,需要將防水范圍擴展至房間內300mm左右,以防該部位返潮、滲漏。
7. 在衛生間等有防水要求的房間,禁止在地面敷設管線,防止水通過管線滲漏,如必須由地面敷設,最好敷設在防水層上部。
二、選對防水材料,效果事半功倍, 室內防水,涂料要比卷材好
室內防水范圍主要體現在衛生間、廚房、陽臺等部位,由于室內防水面積小、防水層陰陽轉角、管道節點、排水節點較多,結構比較復雜。理論上連續完整的防水層效果最好,故無接縫的防水涂料的整體性較有接茬的防水卷材優勢明顯,所以建議采用防水涂料。
目前市面常見住宅室內防水工程常用的防水涂料主要有聚合物水泥基防水涂料(俗稱JS涂料)、聚氨酯防水涂料、丙烯酸防水涂料、聚合物防水砂漿。另外除了防水效果外,防水設計、施工性、環保性、成本工期等也是重要考慮因素。
1、聚合物水泥基防水涂料:簡稱JS防水涂料,是一種雙組分防水材料,它是由有機聚合物乳液(如丙烯酸酯乳液及各種助劑)和無機粉料(如水泥、石英粉等)組成的雙包裝防水涂料。
根據物理性能主要分為I型與II型,II型適用于長期浸水環境,室內防水建議選用II型。其防水性能剛柔相濟,既有水泥類膠凝材料強度高,又兼有聚合物涂膜防水效果好,干燥時間短,節省工期;價格20kg大約在160-180元/桶比較適中,性價比較高。
2、聚氨酯防水涂料:俗稱“液體橡膠”,是皮膚式防水的典范。其拉伸強度大,延伸率高,使用壽命長,是目前綜合性能最好、防水效果最佳的防水材料。其材料按照成分不同分為單組份與雙組份,但某些不環保雙組份產品中使用甲苯二異氰酸脂、MOCA(俗稱摩卡)固化劑等成份具有一定毒性,對環境有污染。
所以為了健康,建議室內防水工程宜選用環保單組份涂料或者環保水固化雙組份涂料。單組份價格20kg大約在300元/桶左右,雙組份價格20kg大約在240元/桶左右,成本較高。
3、丙烯酸防水涂料:是一種以丙烯酸共聚物乳液為主要成份,加入適量填料、助劑、及顏料等配制而成,屬于合成樹脂類單組份水乳型防水涂料。防水層涂刷便利,形成連續彈性膜,對復雜的節點部位施工尤為方便。
但因其主要原料僅為高聚物乳液,故要達到相同厚度,單位面積涂料使用量大,故單位面積成本較高。其價格20kg大約在260元/桶左右。
4、聚合物防水砂漿:是以水泥砂漿、填料為主要組成原料,通過摻加聚合物、外加劑及其它摻合料拌制的防水材料。此種材料可以直接在混凝土表面施工并粘結牢固,不受基層含水率的影響,干燥快,凝結時間短,干燥后即可直接粘貼瓷磚。
但是此種材料屬于剛性防水,對管道根部等復雜節點不宜處理,尤其對于設有同層排水衛生間及設有地暖的廚衛,在長時間使用過程中因節點復雜或溫度變化可能產生裂縫,造成滲漏風險。考慮到防水需要剛柔兼并,不建議室內防水層單獨使用防水砂漿,可作為防潮層使用。
四、衛生間防水做法
衛生間濕區(淋浴)采用兩道防水,具體做法為:結構樓板打磨+第一道防水:滲透結晶型防水涂料兩遍,淋浴區墻體到天花吊頂(大于1.8米),其他部位墻體上返300mm+水泥砂漿保護層+第二道防水:1.5mm厚聚氨酯防水涂料,上返300mm+水泥砂漿保護層。
衛生間干區(洗手、座便區)采用一道防水,具體做法為:結構樓板+水泥砂漿找平+一道防水:1.5 mm厚聚氨酯防水涂料,墻體上返300mm,洗手臺部位上返1000mm+水泥砂漿保護層。
相關推薦
推薦新聞




